HOME > 居抜き店舗紹介

居抜き店舗

神戸、三宮・元町界隈にある各業種向きの
居抜き店舗をご紹介しております。
※現在盛業中や造作設備譲渡がある物件については
事情により詳細情報は秘匿している場合がございます。

元町/トアロード 美容系・サービス業向き店舗 道路面ガラス張り 貸店舗 テナント募集

soldout 9YDHA6qjTGCffFU1460344927_1460344939

図面はスケルトン時の店舗平面図です

お問い合わせ番号 B100485
賃料

292,200円(税込)

共益・管理費

37,800円(税込)

広さ

約100㎡(30.25坪)

初期費用

敷金50万円 礼金50万円(税込)賃貸保証、火災保険加入要す

募集階・現況

7階 / お問い合わせ下さい

所在地・交通

神戸市中央区下山手通 / 各線「三宮」「元町」徒歩4分

備考・その他

業種相談可 

お気軽にお問い合わせください。

078-381-7736

WEBからお問い合わせ

元町 駅徒歩1分 1階路面店 角地貸店舗 北長狭通 飲食・物販・サービス業に好適

soldout DSC071031

※画像は現況のビル正面からの写真です

お問い合わせ番号 F100756
賃料

900,000円(税別)

共益・管理費

賃料に含む

広さ

約72.7㎡(22坪)

初期費用

敷金250万円 礼金750万円(税別)

募集階・現況

1階 / 事務所仕様内装残有り

所在地・交通

神戸市中央区北長狭通3丁目 / JR線「元町」駅 徒歩1分

備考・その他

飲食店・美容関連業種・サービス業・物販店に適す 引渡し状態は相談 その他業種も応相談

お気軽にお問い合わせください。

078-381-7736

WEBからお問い合わせ

神戸・北野町 異人館街の角地店舗 物販店・お土産物店・飲食店も可能 手頃な約12坪 貸店舗

done 3Mnc9dAjNIjA_tT1462772730_1462772742

※画像は店舗前面からの写真です

お問い合わせ番号 AF100754
賃料

120,000円(税込)

共益・管理費

賃料に含む

広さ

1階部分約40㎡(12.1坪)

初期費用

敷金0円 礼金24万円

募集階・現況

1階(2階付きの1棟)/ 惣菜店跡居抜き

所在地・交通

神戸市中央区北野町3丁目 / 各線「三宮」駅

備考・その他

1階物販店向き店舗 2階は住居仕様の1棟貸し 

お気軽にお問い合わせください。

078-381-7736

WEBからお問い合わせ

元町 1階店舗 飲食店居抜き物件 駅徒歩1分 約20坪 大型看板設置可能 貸店舗 テナント募集

soldout FVORlTDG3bpldpx1461828632_1461828661

※画像は従前飲食店時の店内写真です

お問い合わせ番号 F100319
賃料

400,000円(税別)

共益・管理費

15,000円(税別)

広さ

62.85㎡(19.01坪)

初期費用

保証金150万円 礼金200万円(税別)

募集階・現況

1階 / 飲食店居抜き

所在地・交通

神戸市中央区北長狭通3丁目 / 各線「元町」駅 徒歩1分

備考・その他

重飲食も可能な居抜き店舗 駅前では希少な1階店舗 諸条件相談可能 ぜひご内覧くださいませ

お気軽にお問い合わせください。

078-381-7736

WEBからお問い合わせ

三宮 ビジネス街 飲食店居抜き店舗 駅~直結ビル 居酒屋・レストラン・定食・食事処 貸店舗

soldout N9N0GbFl_9vcopO1461827848_1461827864

※画像は店舗導入への階段部写真です

お問い合わせ番号 F100716
賃料

500,000円(税別)

共益・管理費

賃料に含む

広さ

157.65㎡(47.69坪)

初期費用

保証金3ヶ月 礼金3ヶ月 

募集階・現況

地下階 / 飲食店居抜き

所在地・交通

神戸市中央区八幡通4丁目 / 各線「三宮」駅 徒歩6分

備考・その他

駅からさんちかを通り地下通路で直結 神戸市役所前 6月末の空き予定物件 ぜひご予約の上、ご内覧下さいませ

お気軽にお問い合わせください。

078-381-7736

WEBからお問い合わせ

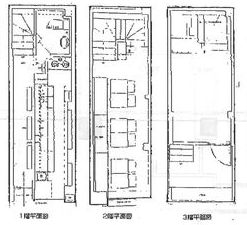
三宮 生田新道沿い バー居抜き物件 敷金・保証金0円 三宮駅徒歩1分 居抜き店舗 貸店舗

テナント募集 yGXVgbA2VQ7ysR91461825549_1461825570

※画像は店舗平面図です

お問い合わせ番号 F100286
賃料

140,000円(税別)

共益・管理費

賃料に含む

広さ

約25㎡(7.56坪)

初期費用

敷金:0円 礼金:30万円(税別) 賃貸保証、テナント保険加入

募集階・現況

4階 / バー仕様内装有

所在地・交通

神戸市中央区北長狭通1丁目 / 各線「三宮」駅 徒歩1分

備考・その他

駅近エリアのバー居抜き物件 ビル間口も広く入りやすい建物です 初期費用も安心材料

お気軽にお問い合わせください。

078-381-7736

WEBからお問い合わせ

三宮 トアイーストエリア 飲食店居抜き 鉄板焼き店跡 神戸サウナ南側 居抜き店舗 貸店舗

soldout vQT8br7TilJCcFS1461824626_1461824683

※画像はビルエントラス前の写真です

お問い合わせ番号 F100689
賃料

150,000円(税別)

共益・管理費

賃料に含む

広さ

26.67㎡(8.06坪)

初期費用

敷金15万円 礼金40万円(税別) 賃貸保証、テナント保険加入要

募集階・現況

3階 / 飲食店居抜き

所在地・交通

神戸市中央区北長狭通2丁目 / 各線「三宮」駅 3分

備考・その他

飲食店がひしめくトアイーストエリア OL・会社員層の需要が多いエリアです

お気軽にお問い合わせください。

078-381-7736

WEBからお問い合わせ

三宮 さんプラザ 大型施設内の路面店 物販店が並ぶアパレル向き店舗 間口も広い25坪 貸店舗

DSC08338 0k3n0LM5hgYYp_l1461730672_1461730687

※画像は店舗前面からの写真です

お問い合わせ番号 A100243
賃料

550,000円(税別)

共益・管理費

121,260円

広さ

87.75㎡(26.54坪)

初期費用

敷金550万円 敷引165万円(税別)

募集階・現況

2階 / アパレル店跡

所在地・交通

神戸市中央区三宮町1丁目 / 各線「三宮」駅 徒歩4分

備考・その他

一部内装が残る居抜き物件 物販店・サービス業向き 

お気軽にお問い合わせください。

078-381-7736

WEBからお問い合わせ

三宮 センタープラザ 1階路面店 物販店・サービス業向き 13坪 間口8m 貸店舗 テナント募集

DSC08117 eW061370svzZtb61461728932_1461728956

※画像は店舗前面からの写真です

お問い合わせ番号 A100856
賃料

612,399円(税別)

共益・管理費

43,250円(税別)

広さ

43.33㎡(13.10坪)

初期費用

保証金2ヶ月 礼金3ヶ月(税別)

募集階・現況

1階 / アクセサリー店跡

所在地・交通

神戸市中央区三宮町1丁目 / 各線「三宮」駅 徒歩3分

備考・その他

人通りが絶えないセンタープラザ1階店舗 アパレル・アクセサリー・靴店・バッグ類等の物販店向き

お気軽にお問い合わせください。

078-381-7736

WEBからお問い合わせ

テイクアウト店居抜き 元町・南京町 1階 3坪含む1棟 貸店舗 土産店・飲食店 テナント募集

soldout Nz8ZLvIWnCVzzn71461647108_1461647122

※画像は店舗前面からの写真です

お問い合わせ番号 F100594
賃料

150,000円(税別)

共益・管理費

なし

広さ

1棟合計35.29㎡(10.67坪)

初期費用

保証金3ヶ月 礼金2ヶ月 賃貸保証、テナント保険加入要

募集階・現況

1棟貸し / テイクアウト店居抜き

所在地・交通

神戸市中央区元町通2丁目 / 各線「元町」駅

備考・その他

お土産店・飲食店・テイクアウト店に好適 内階段で4階迄あり 

お気軽にお問い合わせください。

078-381-7736

WEBからお問い合わせ

三宮/北野坂 トアロード沿い 1階路面店 13坪 物販店・美容業・飲食店も可能 貸店舗 テナント募集

soldout i1YsALzhBBTnYpo1461558970_1461558985

※画像はビル正面からの写真です

お問い合わせ番号 S100472
賃料

150,000円(税別)

共益・管理費

6,800円

広さ

43.41㎡(13.13坪)

初期費用

保証金50万円 礼金50万円 賃貸保証、テナント保険加入要す

募集階・現況

1階 / 物販店盛業中

所在地・交通

神戸市中央区山本通3丁目 / 各線「三宮・元町」徒歩13分

備考・その他

南面にテラス付き(14㎡) 落ち着いた環境の立地 近隣には有名店も多数 業種応相談 業種はビル管理規約により要審査有

お気軽にお問い合わせください。

078-381-7736

WEBからお問い合わせ

三宮 駅近 北長狭通 三宮駅徒歩1分 1階路面店 何業も可能 物販店居抜き店舗 貸店舗

soldout LXG3MOvWyp9mewz1461395607_1461395624

※画像は店舗前面からの写真です

お問い合わせ番号 S100247
賃料

600,000円(税別)

共益・管理費

賃料に含む

広さ

1階40.11㎡+地下40.11㎡ 合計80.22㎡(24.26坪)

初期費用

敷金400万円 敷引300万円

募集階・現況

1階(地下階含む)/ 生花店盛業中

所在地・交通

神戸市中央区北長狭通 / 阪急線「神戸三宮」駅 徒歩1分

備考・その他

水道料月額別途要す 滅多に出ない好物件 物販店居抜き店舗 内覧は事前予約により可能

お気軽にお問い合わせください。

078-381-7736

WEBからお問い合わせ

元町 1階路面店 人通りの多い南京町 路地面 飲食店跡 居抜き店舗 1棟貸し 貸店舗

soldout ckXHAxKMPqKeXDL1461300214_1461300235

※画像は建物正面からの写真です

お問い合わせ番号 F100829
賃料

150,000円(税別)

共益・管理費

なし

広さ

3階建ての1棟合計面積:30.78㎡(9.31坪)

初期費用

敷金30万円 礼金50万円(税別) 賃貸保証、テナント保険加入要す

募集階・現況

1階含む1棟 / 飲食店居抜き

所在地・交通

神戸市中央区元町通2丁目 / 各線「元町」駅 徒歩4分

備考・その他

各階約10.26㎡(3.10坪) 内装・設備の残る飲食店居抜き物件 カウンター・トイレ・エアコン等残置あり カレー店やファストフード、お土産物店に好適

お気軽にお問い合わせください。

078-381-7736

WEBからお問い合わせ

三宮/北野坂 約18坪 飲食店居抜き店舗 程度の良い内装残有り 業種相談 貸店舗 テナント募集

doragonn YmnV5YzcucGGPTC1461298530_1461298552

※画像は当該ビル前面からの写真、図面はスケルトン時の平面図です

お問い合わせ番号 F100937
賃料

150,000円(税別)

共益・管理費

賃料に含む

広さ

約62㎡(18.75坪)

初期費用

保証金50万円 礼金50万円(税別) 賃貸保証、テナント保険加入要

募集階・現況

地下階 / 飲食店 居抜き

所在地・交通

神戸市中央区中山手通1丁目 / 各線「三宮」駅 徒歩6分

備考・その他

飲食店の内装が残る居抜き店舗 業種応相談 路面より直接階下へ下りる階段有り ぜひご内覧くださいませ

お気軽にお問い合わせください。

078-381-7736

WEBからお問い合わせ

元町/元町通1丁目 駅から徒歩2分 飲食店居抜き物件 手頃な10坪 バー居抜き 貸店舗 テナント募集

soldout JDb6WWPm3Tousmj1461222329_1461222341

※画像は店舗前面からの写真です

お問い合わせ番号 F100391
賃料

120,000円(税別)

共益・管理費

なし

広さ

33.68㎡(10.18坪)

初期費用

敷金30万円 礼金50万円(税別)

募集階・現況

地下階 / バー居抜き

所在地・交通

神戸市中央区元町通1丁目 / 各線「元町」駅 徒歩2分

備考・その他

カウンター・設備一式が残る飲食店居抜き店舗 現状で即引き渡し可能 希少駅近物件 ぜひご内覧下さいませ

お気軽にお問い合わせください。

078-381-7736

WEBからお問い合わせ

三宮 北野坂 オーセンティックなバー開業 約6坪 カウンターのみ 貸店舗 テナント募集

DSC07303 DSC07415

※画像は現況のビル正面・店内の写真です

お問い合わせ番号 F100295
賃料

87,000円(税別)

共益・管理費

16,000円(税別)

広さ

18.90㎡(5.72坪)

初期費用

敷金:12ヶ月分 敷引:年数に応じたスライド制

募集階・現況

3階 / 飲食店居抜き

所在地・交通

神戸市中央区加納町4丁目 / 各線「三宮」4分

備考・その他

内装も残るバー向き店舗 小改装で即営業可能 

お気軽にお問い合わせください。

078-381-7736

WEBからお問い合わせ

元町/三宮 トアウエストエリアの中心地 角地で二面採光の明るい店内 物販・美容系業種に最適 貸店舗

114 2016041605

※画像はビル正面からの写真です

お問い合わせ番号 B100194
賃料

276,080円(税別)

共益・管理費

60,420円(税別)

広さ

約66.58㎡(約20.14坪)

初期費用

敷金:2,692,000円 敷引:807,600円(税別) 火災保険加入要す

募集階・現況

2階 / サービス業居抜き

所在地・交通

神戸市中央区北長狭通3丁目 / 各線「元町」駅 徒歩3分

備考・その他

お洒落な店舗ひしめくトアウエストエリアの中心地 各種物販・美容系業種等に最適 審査過程により賃貸保証加入要す 是非ご内覧下さいませ 

お気軽にお問い合わせください。

078-381-7736

WEBからお問い合わせ

三宮 北野坂面す豪華なビル 飲食店に転用可 19坪 居抜き店舗 テナント募集 貸店舗

soldout cuM4AcmeC2HxvDW1460443880_1460443903

※画像はビル前面からの写真です

お問い合わせ番号 F100476
賃料

320,000円(税別)

共益・管理費

賃料に含む

広さ

約65㎡(19.66坪)

初期費用

敷金100万円 礼金64万円(税別) 賃貸保証、火災保険加入要

募集階・現況

3階 / 飲食店居抜き(クラブ仕様)

所在地・交通

神戸市中央区加納町4丁目 / 各線「三宮」駅 徒歩3分

備考・その他

現状からの内装変更OK(業種相談要) そのまま居抜き店舗としてクラブ・ラウンジ等開業も可能

お気軽にお問い合わせください。

078-381-7736

WEBからお問い合わせ

三宮/トアイーストエリア 飲食店居抜き店舗 約12坪 貸店舗 大型飲食ビル 

DSC07020 yG9zbIJmpo65Qh21460191618_1460191634

※画像はビル前面の写真です

お問い合わせ番号 F100273
賃料

180,000円(税別)

共益・管理費

20,000円(税別)

広さ

約42㎡(12坪)

初期費用

保証金120万円 控除80万円(税別)

募集階・現況

6階 / 飲食店居抜き

所在地・交通

神戸市中央区北長狭通2丁目 / 各線「三宮」駅 徒歩2分

備考・その他

焼酎ダイニング跡 居抜き店舗 業種応相談 初回看板作製代・エアコンメンテナンス費年額 

お気軽にお問い合わせください。

078-381-7736

WEBからお問い合わせ

兵庫/冷蔵貸倉庫 飲食事業主様向き 倉庫1棟 中央市場 貸倉庫兼事務所 テナント募集

yjimage7V2FZ3SL a_ktc_D19zyT7A51460345149_1460345169

お問い合わせ番号 F100853
賃料

230,000円(税別)

共益・管理費

無し

広さ

1階54.49㎡・2階64.18㎡ 合計118.67㎡(35.89坪)

初期費用

敷金:賃料の10ヶ月 敷引:賃料の3ヶ月分(税別) 

募集階・現況

1棟(1,2階)/ 冷蔵用設備付き倉庫

所在地・交通

神戸市兵庫区磯之町1 / 「中央市場前」駅 徒歩4分

備考・その他

建物敷地内に駐車場あり 飲食事業主様の食材保管倉庫・作業場・事務所兼用で使えます

お気軽にお問い合わせください。

078-381-7736

WEBからお問い合わせ

1 44 45 46 47 48 49 50