HOME > 事務所・オフィス物件紹介

事務所・オフィス物件

神戸、三宮・元町界隈の各種サイズの事務所に
適した物件をご紹介しております。
新規開設・縮小移転・増床拡大等の目的に
合わせた貸事務所をご提案致します。

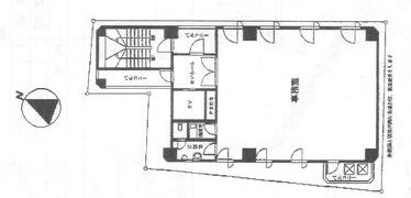
旧居留地 オフィス・事務所 環境良好 エレベーター3基 駐車場完備 30坪・14坪

神戸旧居留地平和ビル JvZgz4H6OsA3YRU1460951708_1460951721

※画像はビル前面からの写真です

お問い合わせ番号 J100175
賃料

応相談

共益・管理費

応相談

広さ

101.30㎡(30.64坪)

初期費用

敷金:12ヶ月

募集階・現況

4階・5階 / 事務所仕様

所在地・交通

神戸市中央区播磨町 / 各線「元町」駅 徒歩5分

備考・その他

光ケーブル・個別空調・機械式駐車場・24時間入退館可能 設備充実・豪華な事務所ビル

お気軽にお問い合わせください。

078-381-7736

WEBからお問い合わせ

三宮 フラワーロード東エリア ビジネス街の貸事務所 初期費用相談可 テナント募集

122 2016041611

※画像はビル前面からの写真です

お問い合わせ番号 J105105
賃料

236,000円(税込)

共益・管理費

148,801円(税込)

広さ

157.05㎡(47.5坪)

初期費用

敷金:1ヶ月 礼金:3ヶ月 家賃保証、火災保険加入要す

募集階・現況

2階 / 事務所仕様内装

所在地・交通

神戸市中央区八幡通3丁目 / JR線「三ノ宮」駅 徒歩7分

備考・その他

落ち着きのあるファサード 駐車場空き有り 初期費用相談可能 是非ご内覧下さいませ

お気軽にお問い合わせください。

078-381-7736

WEBからお問い合わせ

元町 鯉川筋沿い オフィスビル 貸事務所 元町駅徒歩1分 ワンフロア1軒 サービス業種も入居可 敷金0円 テナント募集

鯉川ビル写真 CZxR9badin1Ski11460794287_1460794304

※画像はビル前面からの写真です

お問い合わせ番号 J100146
賃料

350,000円(税別)

共益・管理費

75,000円(税別)

広さ

101.80㎡(30.79坪)

初期費用

敷金:0円 礼金:2ヶ月 賃貸保証、テナント保険加入要す

募集階・現況

5・6階 / 事務所仕様

所在地・交通

神戸市中央区北長狭通4丁目 / 各線「元町」駅 徒歩1分

備考・その他

各種スクール・美容系業種も相談可 駅近・交通至便 

お気軽にお問い合わせください。

078-381-7736

WEBからお問い合わせ

三宮 フラワーロード沿い オフィスビル 美容関連サービス業も可 JR線「三ノ宮」駅2分 テナント募集 貸店舗

DSC07609 l4CBh25temf3seZ1460793938_1460793957

※画像はビル出入り口方向前面からの写真です

お問い合わせ番号 J100243
賃料

312,620円(税別)

共益・管理費

10,000円(税別)

広さ

93.96㎡(28.42坪)

初期費用

保証金:6ヶ月 礼金・解約引:なし テナント保険加入要す

募集階・現況

6階 / 事務所仕様

所在地・交通

神戸市中央区布引町4丁目 / JR線「三ノ宮」駅 徒歩2分

備考・その他

フリーレント期間相談可能 教室・エステ系業種・クリニック等の業種相談可 

お気軽にお問い合わせください。

078-381-7736

WEBからお問い合わせ

元町 県庁街 貸事務所 環境良好 角地ビル ワンフロア26坪 3方向窓面有り

ゴールデンサンビル写真 ZnqG0PYpAcebwZN1460792930_1460793051

※画像はビル前面からの写真です

お問い合わせ番号 J100461
賃料

300,000円(税別)

共益・管理費

賃料に含む

広さ

87.60㎡(26.49坪)

初期費用

敷金90万円 礼金90万円(税別)

募集階・現況

3階 / 事務所仕様

所在地・交通

神戸市中央区中山手通4丁目 / 各線「元町」駅 徒歩6分

備考・その他

機械警備 天高2500㎜ 男女トイレ別 エアコン2基 その他設備充実

お気軽にお問い合わせください。

078-381-7736

WEBからお問い合わせ

元町/貸店舗 事務所・美容関連業OK 大型店舗 各線元町駅歩2分 ワンフロア1軒 大きな窓面有採光良好

118 2016041606

※画像はビル正面からの写真です

お問い合わせ番号 J100783
賃料

325,000円(税別)

共益・管理費

賃料に含む

広さ

約191.74㎡(約58坪)

初期費用

敷金:200万円 解約引:年数に応じたスライド制 賃貸保証、テナント保険加入要す

募集階・現況

3階 / スケルトン

所在地・交通

神戸市中央区元町通2丁目 / 各線「元町」駅 徒歩2分

備考・その他

各種サービス業・美容関連業種等に好適 別途ゴミ処理代金要す 是非ご内覧下さいませ

お気軽にお問い合わせください。

078-381-7736

WEBからお問い合わせ

元町駅徒歩2分 貸事務所・貸オフィス 大小サイズ有り 駐車場付きビル テナント募集

富士信ビル写真 mXTMqcbvm32yEbD1460773049_1460773198

※画像はビル前面からの写真です

お問い合わせ番号 J100751
賃料

坪当り11,500円(税別・共益費含む)

共益・管理費

賃料に含む

広さ

5階:95.80㎡(28.98坪) 8階:272.42㎡(82.41坪)

初期費用

保証金:8ヶ月 保証引:1ヶ月

募集階・現況

5階・8階 / 事務所仕様

所在地・交通

神戸市中央区北長狭通4丁目 / 各線「元町」駅 徒歩2分

備考・その他

元町駅北側の大型オフィスビル 駐車場も完備(空確認要) 県庁街にも近く駅からのアクセスも至便

お気軽にお問い合わせください。

078-381-7736

WEBからお問い合わせ

三宮 ビジネス街 御幸通 大型貸事務所ビル 交通至便 駐車場完備 テナント募集

DSC07281 cNL2OkVZDPjaR4D1460615293_1460615309

※画像はビル前面からの写真です

お問い合わせ番号 J100861
賃料

263,200円(税別)

共益・管理費

65,800円(税別)

広さ

約87㎡(26.32坪)

初期費用

敷金:賃料共益費5ヶ月 礼金:賃料共益費1ヶ月分(税別)

募集階・現況

8階 / 事務所仕様

所在地・交通

神戸市中央区御幸通6丁目 / JR線「三ノ宮」駅 徒歩3分

備考・その他

個別空調 立体駐車場 各室機械警備 電気代別途請求有 

お気軽にお問い合わせください。

078-381-7736

WEBからお問い合わせ

元町 各線「元町」駅徒歩1分 商業エリアの貸事務所 人通りの多い立地 テナント募集

DSC07193 QO46iYzLBc3EZ9W1460444122_1460444142

※画像はビル正面からの写真です

お問い合わせ番号 J100173
賃料

ご相談(お問い合わせくださいませ)

共益・管理費

ご相談(お問い合わせくださいませ)

広さ

91.78㎡(27.76坪)

初期費用

賃料の12ヶ月分 償却無し

募集階・現況

4階 / 事務所仕様内装

所在地・交通

神戸市中央区三宮町3丁目 / 各線「元町」駅 徒歩1分

備考・その他

駅徒歩1分のアクセス 土日祝も利用可 ビル内倉庫も貸出可能 エントランスリニューアル済み

お気軽にお問い合わせください。

078-381-7736

WEBからお問い合わせ

三宮 国際会館南側エリア ビジネス街の貸事務所 入居し易い初期費用 テナント募集

DSC07255 AC9Iy1frcdundNy1460429679_1460429711

※画像はビル正面からの写真です

お問い合わせ番号 J100473
賃料

62,100円(税込)

共益・管理費

10,800円(税込)

広さ

24.74㎡(7.48坪)

初期費用

敷金・礼金:0円 賃貸保証、火災保険加入要す

募集階・現況

2階 / 事務所仕様内装

所在地・交通

神戸市中央区八幡通4丁目 / 各線「三宮」駅 徒歩7分

備考・その他

エントランス改修・美装済 入居し易い初期費用 

お気軽にお問い合わせください。

078-381-7736

WEBからお問い合わせ

三宮 旧居留地 道路面は大きなガラス張り リノベーション済み デザイン会社等 貸事務所

DSC07245 bINoxffc34gQUc31460429756_1460429774

※画像はビル前面からの写真です

お問い合わせ番号 F100416
賃料

426,600円(税込)

共益・管理費

賃料に含む

広さ

181.90㎡(55.02坪)

初期費用

礼金20万円(税別) 敷金圃場金:なし

募集階・現況

6階 / お洒落な内装付き事務所

所在地・交通

神戸市中央区東町 / 各線「三宮」駅 徒歩10分

備考・その他

旧居留地の一画 豪華な内装が施された室内

お気軽にお問い合わせください。

078-381-7736

WEBからお問い合わせ

三宮 JR線・阪急電鉄「三宮」徒歩1分 貸事務所 各種教室にも使用可 テナント募集

DSC07298 fuM8jksa5MiPUSh1460443986_1460444016

※画像はビル前面からの写真です

お問い合わせ番号 J100856
賃料

179,400円(税別)

共益・管理費

38,400円(税別)

広さ

42.40㎡(12.82坪)

初期費用

賃料の12ヶ月分 解約時全額返還

募集階・現況

6階 / 事務所仕様

所在地・交通

神戸市中央区布引町4丁目 / 各線「三宮」駅 徒歩1分

備考・その他

空き予定物件 各種教室等にも好適 

お気軽にお問い合わせください。

078-381-7736

WEBからお問い合わせ

元町 鯉川筋面す角地ビル 元町駅徒歩3分 事務所や美容系業種向き テナント募集 貸店舗

サニーハイツ鯉川 SHこいかわSARCN5vCWfNIul61459318947_1459318976

※画像はビル外観の写真です

お問い合わせ番号 JB100632
賃料

139,000円(税込)

共益・管理費

25,425円(税込)

広さ

50.54㎡(15.28坪)

初期費用

敷金10万円 礼金20万円(税込)

募集階・現況

9階 / 事務所仕様内装有り

所在地・交通

神戸市中央区北長狭通3丁目 / 各線「元町」駅 徒歩3分

備考・その他

エステ・ネイル・ヘアサロン等も入居する人気のビル 同業種も可能 ぜひご内覧下さいませ

お気軽にお問い合わせください。

078-381-7736

WEBからお問い合わせ

1 20 21 22 23 24 25