HOME > 新着物件紹介 > 10坪以内の新着物件

新着物件

三宮・元町の新着貸店舗、居抜き店舗、
貸事務所をご紹介しております

10坪以内の新着物件

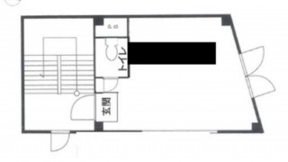
☆三宮繁華街 レンガ筋2階(北長狭通1)  ☆敷金礼金0 ☆バー居ぬき7坪

図面 内観①

お問い合わせ番号 k4380228
賃料

12.98万(税込)

共益・管理費

11000円(税込)

広さ

約23㎡
約7坪

初期費用

敷金 0
礼金 0 ☆初期費用 約50万前後

募集階・現況

2階
空き

所在地・交通

神戸市中央区北長狭通1
JR三ノ宮 トホ4分

備考・その他

お気軽にお問い合わせください。

078-381-7736

WEBからお問い合わせ

☆阪急 夙川トホ3分 ☆ブティク居ぬき(軽飲食可能)☆前面ガラス張り

図面 外観②

お問い合わせ番号 k4090115
賃料

16.5万

共益・管理費

16500円(税込)

広さ

24.48㎡
7.4坪

初期費用

敷金 0
礼金 33万(税込) 初期費用 約90万

募集階・現況

1階
営業中(引渡日 相談)

所在地・交通

西宮市羽衣町
阪急夙川駅トホ3分(ダイエー西)

備考・その他

お気軽にお問い合わせください。

078-381-7736

WEBからお問い合わせ

☆阪神大物駅 トホ3分 10坪 7.7万 居酒屋跡

図面 内観①

お問い合わせ番号 k4080115
賃料

7.7万(税込)

共益・管理費

無し

広さ

33.06㎡
約10坪

初期費用

敷金 0
礼金 7.7万(税込) 初期費用 約30万

募集階・現況

1階路面
空き(現況渡し)

所在地・交通

東大物町1
 阪神 大物トホ3分

備考・その他

居酒屋 悦ちゃん 跡

お気軽にお問い合わせください。

078-381-7736

WEBからお問い合わせ

☆北長狭通1 レンガ筋1階路面 飲食店跡

スクリーンショット 2025-09-08 125428 スクリーンショット 2025-09-08 125439

お問い合わせ番号 k3950908
賃料

33万(税込)

共益・管理費

11000円

広さ

33㎡
約10坪

初期費用

敷金 0
礼金 132万 什器備品代50万 約300万

募集階・現況

1階
空き

所在地・交通

三ノ宮 トホ3分

備考・その他

お気軽にお問い合わせください。

078-381-7736

WEBからお問い合わせ

☆三宮東口すぐ 1階路面 飲食店跡 ☆9.5坪 41.8万

図面 スクリーンショット 2025-08-30 131107

お問い合わせ番号 k3790830
賃料

41.8万(税込)

共益・管理費

無し

広さ

31.28㎡
約9.5坪

初期費用

敷金 200万
礼金 125.4万 初期費用450-500万

募集階・現況

1階
空き

所在地・交通

神戸市中央区旭通5
JR三ノ宮トホ3分

備考・その他

お気軽にお問い合わせください。

078-381-7736

WEBからお問い合わせ

☆10坪 7.7万 ☆明石市仲ノ町(アスピアの東側) 1階路面  ☆飲食店居ぬき ※重飲食✕

スクリーンショット 2025-05-29 223143 スクリーンショット 2025-05-29 223154

お問い合わせ番号 k2890529
賃料

7.7万

共益・管理費

7700円(税込)

広さ

32.58㎡
9.85坪

初期費用

礼金15.4万(税込)
 初期費用 約45-50万

募集階・現況

1階
7月末空き予定

所在地・交通

明石市仲ノ町
JR明石駅トホ5分

備考・その他

ゴミ代 3300円/月

お気軽にお問い合わせください。

078-381-7736

WEBからお問い合わせ

☆生田新道沿い3階 ☆飲食店居ぬき ☆12月末空き予定

スクリーンショット 2024-10-04 172201 スクリーンショット 2024-10-04 172111

お問い合わせ番号 k1511031
賃料

20万(税込)

共益・管理費

広さ

31.4㎡
9.5坪

初期費用

保証金200万
解約引き150万 初期費用約260-280万

募集階・現況

3階
12月末空き予定

所在地・交通

神戸市中央区下山手通2
三ノ宮駅トホ5分

備考・その他

お気軽にお問い合わせください。

078-381-7736

WEBからお問い合わせ

☆板宿駅トホ5分 ☆1階 立ち呑み営業中

図面 スクリーンショット 2024-10-14 140109

お問い合わせ番号 k1411014
賃料

9.9万(税込)

共益・管理費

0

広さ

28.7㎡
約8.7坪

初期費用

敷金 9万
礼金 19.8万 初期費用  約60万前後

募集階・現況

1階
空き予定 (入居時期相談)

所在地・交通

須磨区大田町3
板宿駅 トホ5分

備考・その他

お気軽にお問い合わせください。

078-381-7736

WEBからお問い合わせ

☆1階路面新道沿い ☆物販・美容向き(飲食不可) 

20240120_072426925_iOS スクリーンショット 2024-01-20 161754

お問い合わせ番号 k1080120
賃料

19.25万(税込)

共益・管理費

賃料に含む

広さ

27.55㎡
8.33坪

初期費用

敷金1ヶ月
礼金3ヶ月 初期費用 約150万(前家賃込 概算)

募集階・現況

1階

所在地・交通

神戸市中央区下山手通2

備考・その他

☆詳細はご連絡ください 

お気軽にお問い合わせください。

078-381-7736

WEBからお問い合わせ

☆北野坂 東の筋 ☆美麗スナック ☆スグ営業出来ます

スクリーンショット 2023-08-21 122546 スクリーンショット 2023-08-21 122432

お問い合わせ番号 K00720821
賃料

13.2万(税込)

共益・管理費

11000円(税込) + ゴミ代 4400円

広さ

20.40㎡
6.17坪

初期費用

敷金12万
礼金26.4万(税込)   初期費用 約70-80万(概算)

募集階・現況

3階 3-B号室 
8月末空き予定

所在地・交通

神戸市中央区加納町4丁目
 JR三ノ宮 トホ6分

備考・その他

☆9月以降 即営業出来ます ☆営業許可等もお聞きください。 ★「ホームページみました」⇒手数料1万値引します。

お気軽にお問い合わせください。

078-381-7736

WEBからお問い合わせ

☆センタープラザ西館 ☆飲食店街 地下 ☆居酒屋居抜き 重飲食OK ☆間口5.4メートル ☆カウンター14席

外観① 図面

お問い合わせ番号 k0057
賃料

25.3万(税込)

共益・管理費

賃料に含む

広さ

31.62㎡
約9.56坪

初期費用

敷金 46万
礼金 50.6万(税込)  

募集階・現況

地下1階

所在地・交通

神戸市中央区三宮町2丁目   センタープラザ西館B1F 
 阪急 神戸三宮駅トホ3分

備考・その他

☆倉庫(約3坪付) ※営業時間9時~21時

お気軽にお問い合わせください。

078-381-7736

WEBからお問い合わせ

☆JR高架下 1階路面ガラス張り ☆物販店・美容系・軽飲食向き(ガス無)

外観 図面

お問い合わせ番号 k0031
賃料

18.7万(税込)

共益・管理費

自治会費 7,500円/月

広さ

27㎡
8.16坪

初期費用

敷金1ヶ月
礼金2ヶ月  イニシャルコスト⇒おおよそ 115-130万

募集階・現況

1階路面店 
営業中 (5/末空予定)

所在地・交通

JR元町駅 トホ5分 
 JRの高架下(北側)

備考・その他

お気軽にお問い合わせください。

078-381-7736

WEBからお問い合わせ

☆中山手通1 ☆2階 バー居抜き ☆カウンター8ボックス席1 ☆軽飲食〇

か)華東ビル か)華東ビル201

お問い合わせ番号 k0029
賃料

11万(税込)

共益・管理費

ナシ

広さ

19.8㎡
6坪

初期費用

敷金 0
礼金 16.5万(税込) 初期費用55-70万

募集階・現況

2階
空室

所在地・交通

三宮駅トホ5分

備考・その他

☆すぐ営業できます。☆居抜き 内見可能

お気軽にお問い合わせください。

078-381-7736

WEBからお問い合わせ

☆1階路面☆美容・物販向き☆人気のトア山手

トア山手フラッツ111 1階

お問い合わせ番号 k0028
賃料

17.6万(税込)

共益・管理費

ナシ

広さ

27.7㎡
8.37坪

初期費用

敷金0
礼金3ヶ月

募集階・現況

1階路面店
空室

所在地・交通

JR三ノ宮&元町トホ8分

備考・その他

喫茶店等 軽飲食店可能

お気軽にお問い合わせください。

078-381-7736

WEBからお問い合わせ

☆三宮 1階居抜き☆ ☆バー・軽飲食向き ☆初期費用安い ☆1人でまわせます

こ)コペン弐番館 こ)コペン弐番館 1階

お問い合わせ番号 k0027
賃料

21.34万(税込)

共益・管理費

2.2万 (税込)

広さ

21.09㎡
約6.4坪

初期費用

保証金 0
礼金 11万   ☆総額100万以内☆

募集階・現況

☆ 1階 ☆

所在地・交通

神戸市中央区北長狭通1丁目21-6
 JR 三ノ宮 トホ4分

備考・その他

☆ 希少 1階居抜き ☆

お気軽にお問い合わせください。

078-381-7736

WEBからお問い合わせ

☆新道ミニバー居抜き ☆カウンター4席+ボックス席 ☆賃料安 ☆1人でまわせます ☆美麗内装

か)かどやビル外観 か)かどやビル3階

お問い合わせ番号 k0024
賃料

9.9万円(税込)

共益・管理費

5,500円

広さ

15.57㎡ 
5坪弱  

初期費用

敷金10万
礼金22万 総額約70万

募集階・現況

3階
空室

所在地・交通

神戸市中央区北長狭通1-20-3

備考・その他

☆バー居抜き ☆即営業できます

お気軽にお問い合わせください。

078-381-7736

WEBからお問い合わせ

☆三宮 ☆神戸サウナ横 ☆新道スタバのビル ☆1ボックス居抜き ☆内見可能 ☆初期費用約100万(日割り等変更有) 

13シャルマン 13シャルマン② (1)

お問い合わせ番号 k0022
賃料

15.4万(税込)

共益・管理費

22000円(税込)

広さ

23.4㎡
8.6坪

初期費用

保証金10万
礼金2ヶ月

募集階・現況

所在地・交通

JR 三ノ宮 7分
地下鉄 三宮 2分

備考・その他

☆即営業できます ☆初期費用安

お気軽にお問い合わせください。

078-381-7736

WEBからお問い合わせ

☆ダイニングバー居抜き ☆三宮繁華街2階 ☆カウンター8席 ☆即営業可能 ☆内見可能

扇港ビル2階① 扇港ビル2階②

お問い合わせ番号 r0021
賃料

16.17万(税込)

共益・管理費

賃料に含む

広さ

約26㎡
約9坪弱

初期費用

敷金 1ヶ月
礼金 2ヶ月

募集階・現況

2階
3月末に空き リフォーム中

所在地・交通

三ノ宮駅トホ5分

備考・その他

☆バー居抜き ☆すぐ営業できます ☆イス新調済み 

お気軽にお問い合わせください。

078-381-7736

WEBからお問い合わせ

トアウエストエリア 待望の2階物件 大型窓有り ワンフロア 約11坪 美麗内装付き 居抜き

お問い合わせ番号 FBA102419
賃料

14万円

共益・管理費

賃料に含む

広さ

36.61㎡

初期費用

敷金30万円 礼金30万円 賃貸保証加入

募集階・現況

2階/美容系店舗跡居抜き

所在地・交通

神戸市中央区北長狭通3丁目/各線元町駅徒歩3分

備考・その他

軽飲食まで可 美容系・各種物販店・各種サービス業 その他業種応相談

お気軽にお問い合わせください。

078-381-7736

WEBからお問い合わせ

三宮 新道沿い ガラス面ありバー跡 カウンター&2ボックス

西田ビル

お問い合わせ番号 K0015
賃料

18.7万(税込)

共益・管理費

3.3万円(税込)

広さ

24.8㎡
7.5坪

初期費用

敷金2ヶ月
礼金3ヶ月

募集階・現況

3階
空室

所在地・交通

地下鉄(神戸市西神山手線)トホ1分

備考・その他

飲食店もできます。(重飲食店 不可)

お気軽にお問い合わせください。

078-381-7736

WEBからお問い合わせ

1 2 3 4 5 6 21